- amministrazione trasparente/
- Altri contenuti/
- Dati ulteriori/
- AASSTT/
- AST Ascoli Piceno/
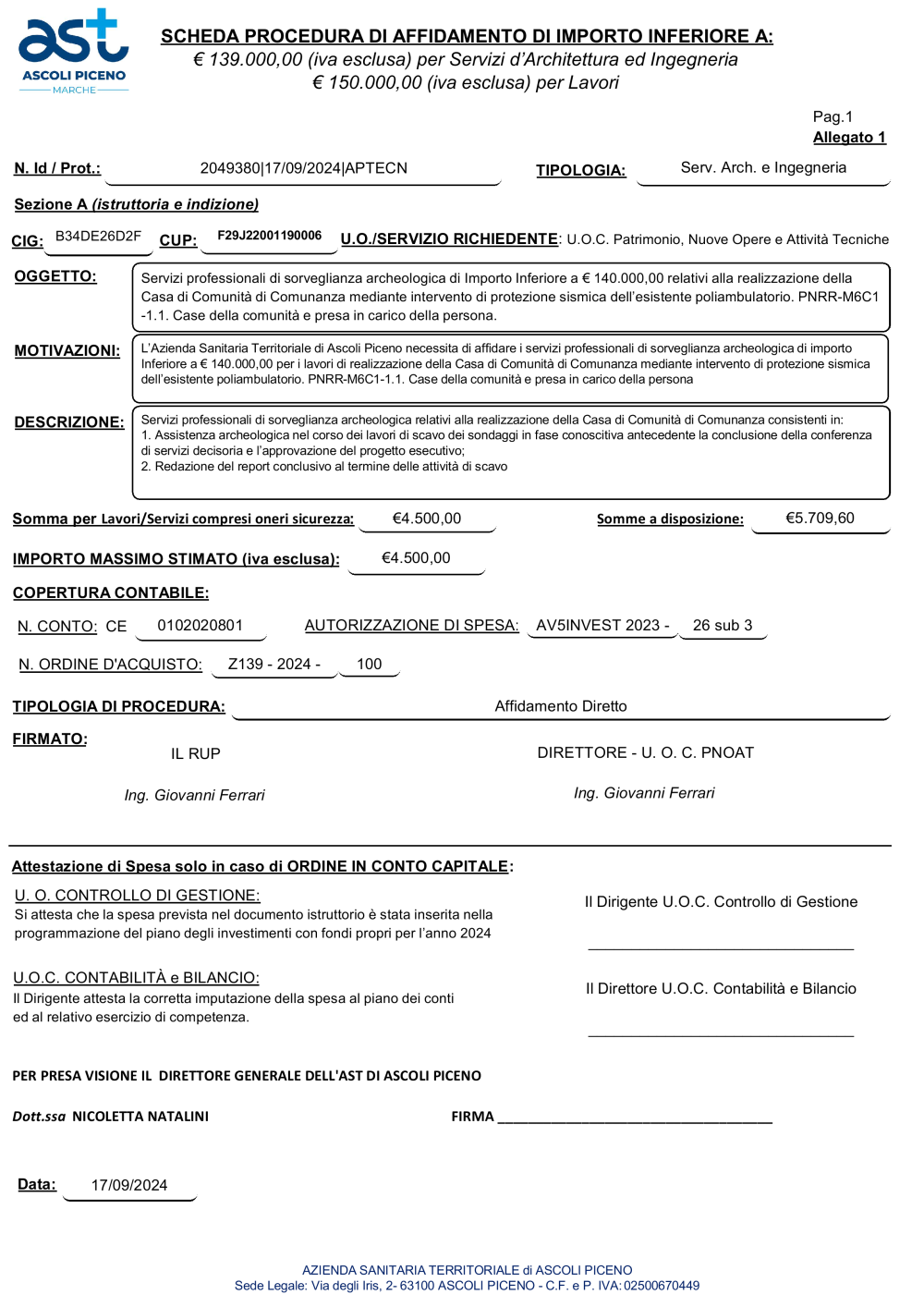
- 2024 AFFIDAMENTO Servizi professionali di sorveglianza archeologica per realizzazione Casa di Comunità Comunanza PNRR
2024 AFFIDAMENTO Servizi professionali di sorveglianza archeologica per realizzazione Casa di Comunità Comunanza PNRR
2024 AFFIDAMENTO Servizi professionali di sorveglianza archeologica per realizzazione Casa di Comunità Comunanza PNRR
Subido por Cristina Cocci Grifoni, 11/11/24 11:51
Comentarios
Versión 1.0
Modificado por última vez por Cristina Cocci Grifoni
11/11/24 11:51
Estado: Aprobado
Descargar (644k) Obtener la URL o la URL WebDAV. Metadatos extraídos automáticamente
2024-11-11T11:22:46Z
Stefania Cancellieri
2024-11-11T11:22:46Z
Manutenzioni 2024 (a513fs01)
application/pdf
2024-11-11T11:22:46Z
Stefania Cancellieri
2024-11-11T11:22:46Z
2024-11-11T11:22:46Z